УДК 691.11.028.2:006.354 ГОСТ 12506-81
Группа Ж32
ГОСУДАРСТВЕННЫЙ СТАНДАРТ СОЮЗА ССР
ОКНА ДЕРЕВЯННЫЕ ДЛЯ ПРОИЗВОДСТВЕННЫХ ЗДАНИЙ
Типы, конструкция и размеры
Wooden windows for industrial buildings.
Types, structure and dimensions
ОКП 53 6134, 53 6138
Дата введения 1984-01-01
ИНФОРМАЦИОННЫЕ ДАННЫЕ
1. РАЗРАБОТАН И ВНЕСЕН Центральным научно-исследовательским и проектно-экспериментальным институтом промышленных зданий и сооружений (ЦНИИПромзданий) Госстроя СССР
РАЗРАБОТЧИКИ
Ю.П.Александров, канд. техн. наук; С.К.Стрелков; А.М.Горбунов (руководитель темы); И.В.Прибыткова; Я.И.Фаерштейн; Г.В.Левушкин; Т.А.Копейка
2. УТВЕРЖДЕН И ВВЕДЕН В ДЕЙСТВИЕ Постановлением Государственного комитета СССР по делам строительства от 22.07.81 № 126
3. ВЗАМЕН ГОСТ 12506-67 и ГОСТ 16407-70
4. ССЫЛОЧНЫЕ НОРМАТИВНО-ТЕХНИЧЕСКИЕ ДОКУМЕНТЫ
| Обозначение НТД, на который дана ссылка
|
Номер пункта |
| ГОСТ 111-90 | 2.9 |
| ГОСТ 5088-94 | 2.6 |
| ГОСТ 5090-86 | 2.6 |
| ГОСТ 5091-78 | 2.6 |
| ГОСТ 10174-90 | 2.7 |
| ГОСТ 23166-78 | 2.1 |
5. ПЕРЕИЗДАНИЕ
Настоящий стандарт распространяется на деревянные окна, предназначенные для заполнения проемов в производственных и вспомогательных зданиях промышленных и сельскохозяйственных предприятий.
Окна, представленные в настоящем стандарте, рассчитаны на ветровую нагрузку 850 Н/кв.м (85 кгс/кв.м).
1. ТИПЫ, РАЗМЕРЫ И МАРКИ
1.1. В зависимости от способа открывания окна, изготовляемые по настоящему стандарту, подразделяют на серии:
В — открывающиеся внутрь помещения;
Н — открывающиеся наружу;
Г — глухие (неоткрывающиеся).
1.2. Окна серий В и Н состоят из коробок, переплетов и остекления, серии Г — из коробок и остекления.
Окна серий В и Н представляют собой одинарную конструкцию с одним рядом остекления или спаренную конструкцию с двумя рядами остекления.
Окна серии Г представляют собой одинарную конструкцию с одним рядом остекления.
1.3. Окна серий Н и Г следует применять только в одноэтажных зданиях, а серии В — в одно- и многоэтажных зданиях.
1.4. Заполнение проемов должно производиться: в зданиях промышленных предприятий одним или несколькими оконными блоками по высоте и ширине проема, а в зданиях сельскохозяйственных предприятий по высоте одним, а по ширине — одним или несколькими оконными блоками.
Примерные схемы заполнения оконных проемов приведены:
— с простеночным остеклением для зданий промышленных предприятий — в приложении 1;
— с ленточным остеклением для зданий промышленных предприятий в приложении 2;
— с простеночным остеклением для зданий сельскохозяйственных предприятий — в приложении 3.
1.5. В зданиях промышленных предприятий для заполнения проемов высотой более 18М (М=100 мм) и шириной 30 М должны применяться оконные блоки с шириной деталей коробки 124 мм.
1.6. На чертежах настоящего стандарта указаны размеры в миллиметрах неокрашенных деталей и изделий.
1.7. Габаритные размеры окон для зданий промышленных предприятий указаны на черт.1, а для зданий сельскохозяйственных предприятий — на черт.2.
1.8. Устанавливают следующую структуру условного обозначения (марки) окон:
Примеры условных обозначений
Окно для зданий промышленных предприятий, открывающееся внутрь помещения, спаренной конструкции, высотой 18 и шириной 30 дм, при ширине деталей коробки 124 мм:
ПВД18-30.2 ГОСТ 12506-81
То же, с левым расположением узкой створки:
ПВД18-30.2Л ГОСТ 12506-81
Окно для зданий промышленных предприятий, открывающееся наружу, одинарной конструкции, высотой 12 и шириной 24 дм, при ширине деталей коробки 94 мм:
ПНО12-24.1 ГОСТ 12506-81
То же, неоткрывающееся (глухое), высотой 12 и шириной 18 дм:
ПГ12-18 ГОСТ 12506-81
Окно для зданий сельскохозяйственных предприятий неоткрывающееся (глухое), высотой 6 и шириной 12 дм:
СГ6-12 ГОСТ 12506-81
То же, с жалюзийной решеткой:
СГ6-12Ж ГОСТ 12506-81
Окно для зданий сельскохозяйственных предприятий, открывающееся внутрь помещения, одинарной конструкции, высотой 12 и шириной 18 дм:
СВО12-18 ГОСТ 12506-81
То же, спаренной конструкции:
СВД12-18 ГОСТ 12506-81
Габаритные размеры окон для зданий промышленных предприятий
Черт.1
Примечания:
1. Схемы окон изображены со стороны фасада.
2. Цифры над схемами означают размеры окон в модулях.
3. Схемы заполнения переплетами показаны для окон серии Н.
Габаритные размеры окон для зданий сельскохозяйственных предприятий
Черт.2
Примечания см. на черт.1.
2. ТРЕБОВАНИЯ К КОНСТРУКЦИИ
2.1. Окна должны изготовляться в соответствии с требованиями ГОСТ 23166 и настоящего стандарта по рабочим чертежам, утвержденным в установленном порядке.
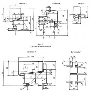
2.2. Конструкция, форма, основные размеры и марки окон серии В для зданий промышленных предприятий должны соответствовать указанным на черт.3, а для сельскохозяйственных предприятий — на черт.4. Форма и размеры сечений деталей окон серии В с одинарным остеклением указаны на черт.5, а с двойным остеклением — на черт.6.
2.3. Конструкция, форма, основные размеры и марки окон серии Н для зданий промышленных предприятий должны соответствовать указанным на черт.7 и 8. Форма и размеры сечений деталей окон серии Н с одинарным остеклением указаны на черт.9, а с двойным остеклением на черт.10.
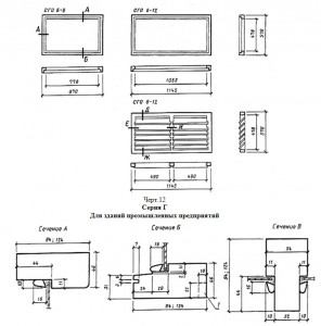
2.4. Конструкция, форма, основные размеры и марки окон серии Г для зданий промышленных предприятий должны соответствовать указанным на черт.11, а для сельскохозяйственных предприятий — на черт.12. Форма и размеры сечений деталей окон серии Г для зданий промышленных предприятий указаны на черт.13, а для зданий сельскохозяйственных предприятий — на черт.14.
2.5. Навеска створок должна осуществляться по схемам, указанным на черт.3, 4, 7 и 8.
2.6. Петли, угольники, запорные приборы и винтовые стяжки окон должны удовлетворять ГОСТ 5088, ГОСТ 5091 и ГОСТ 5090.
Расположение приборов приведено в приложении 4.
2.7. Уплотнение притворов окон должно производиться пенополиуретановыми прокладками по ГОСТ 10174; места их крепления указаны на чертежах сечений деталей.
2.8. В нижних брусках коробок окон серии В спаренной конструкции должны устраиваться прорези для отвода дождевой воды, располагаемые на расстоянии 50 мм от вертикальных брусков коробок.
2.9. Для остекления окон следует применять стекло по ГОСТ 111.
Спецификации стекол для окон приведены в приложениях 5 и 6.
Конструкция, форма, основные размеры и марки окон
Черт.3
Для зданий сельскохозяйственных предприятий
Черт.4
Серия В
С одинарным остеклением
Черт.6
1 — уплотняющие прокладки
1 -уплотняющие прокладки; 2 -прорезь для отвода воды; 3 — прорезь, выбирают для окон зданий сельскохозяйственных предприятий; 4 -четверть, выбирают при необходимости установки подоконных досок (плит)
Черт.6 (продолжение)
Конструкция, форма, основные размеры и марки окон
Серия Н
Для зданий промышленных предприятий
Черт.7
Черт.8
Серия Н
С одинарным остеклением
1 — уплотняющая прокладка; 2 — четверть, выбирают при необходимости установки
подоконных досок (плит)
Черт.9
Серия Н
С двойным остеклением
1 — уплотняющая прокладка; 2 — винтовая стяжка; 3 — четверть, выбирают при необходимости установки подоконных досок (плит)
Черт.10
Конструкция, форма, основные размеры и марки окон
Черт.11
Для зданий сельскохозяйственных предприятий
1 — четверть, выбирают при необходимости установки подоконных досок (плит)
Черт.13
Серия Г
Для зданий сельскохозяйственных предприятий
Черт.14
ПРИЛОЖЕНИЕ 1
Справочное
ПРИМЕРНЫЕ СХЕМЫ ЗАПОЛНЕНИЯ ОКОННЫХ ПРОЕМОВ С ПРОСТЕНОЧНЫМ ОСТЕКЛЕНИЕМ ДЛЯ ЗДАНИЙ ПРОМЫШЛЕННЫХ ПРЕДПРИЯТИЙ
ПРИЛОЖЕНИЕ 2
Справочное
ПРИМЕРНЫЕ СХЕМЫ ЗАПОЛНЕНИЯ ОКОННЫХ ПРОЕМОВ С ЛЕНТОЧНЫМ ОСТЕКЛЕНИЕМ ДЛЯ ЗДАНИЙ ПРОМЫШЛЕННЫХ ПРЕДПРИЯТИЙ
ПРИЛОЖЕНИЕ 3
Справочное
ПРИМЕРНЫЕ СХЕМЫ ЗАПОЛНЕНИЯ ОКОННЫХ ПРОЕМОВ С ПРОСТЕНОЧНЫМ ОСТЕКЛЕНИЕМ ДЛЯ ЗДАНИЙ СЕЛЬСКОХОЗЯЙСТВЕННЫХ ПРЕДПРИЯТИЙ
ПРИЛОЖЕНИЕ 4
Рекомендуемое
ПРИМЕРЫ РАСПОЛОЖЕНИЯ ПРИБОРОВ В ОКНАХ
1 — стяжка СТ; 2 — завертка ЗР2; 3 — ПВ3-2 или ПН7-2; 4 — ПВ2-75-2 или ПВ4-75-2; 5 — ПН6-80Л или ПН7-1, или ПВ3-1; 6 — ПВ4-75-1 или ПВ2-75-1, или ПВ1-100Л
Черт.1
1 — стяжка СТ; 2 — завертка ЗР2; 3 — ПН7-2 или ПВ3-2; 4 — ПВ2-100-2 или ПВ4-90-2; 5 — ПН6-110П или ПН7-1, или ПВ3-1; 6 — ПВ4-90-1 или ПВ2-100-1, или ПВ2-100Л
Черт.1 (продолжение)
Примечание. В окнах ПВД12-18.1; ПВД18-18.1; ПНД12-18.1; ПНД18-18.1 завертки устанавливают только при отсутствии механизмов открывания.
Серия В
ПРИЛОЖЕНИЕ 5
Справочное
СПЕЦИФИКАЦИЯ СТЕКОЛ ДЛЯ ОКОН СЕРИИ В
|
Марка окна |
Размер, мм
|
Количество |
||
| Высота | Ширина | Толщина | ||
| Для зданий промышленных предприятий | ||||
| ПВД12-18.1 | 980 | 1025 | 4 | 2 |
| 980 | 450 | 3 | 2 | |
| ПВД12-24.1 | 980 | 1025 | 4 | 4 |
| ПВД12-30.1 | 980 | 1025 | 4 | 4 |
| 980 | 450 | 3 | 2 | |
| ПВД12-30.1П | 980 | 1025 | 4 | 4 |
| 980 | 450 | 3 | 2 | |
| ПВД12-30.2 | 980 | 1025 | 4 | 4 |
| 980 | 450 | 3 | 2 | |
| ПВД12-30.2П | 980 | 1025 | 4 | 4 |
| 980 | 450 | 3 | 2 | |
| ПВД18-18.1 | 1580 | 1025 | 4 | 2 |
| 1580 | 450 | 3 | 2 | |
| ПВД18-24.1 | 1580 | 1025 | 4 | 4 |
| ПВД18-30.1 | 1580 | 1025 | 4 | 4 |
| 1580 | 450 | 3 | 2 | |
| ПВД18-30.1П | 1580 | 1025 | 4 | 4 |
| 1580 | 450 | 3 | 2 | |
| ПВД18-30.2 | 1580 | 1025 | 4 | 4 |
| 1580 | 450 | 3 | 2 | |
| ПВД18-30.2П | 1580 | 1025 | 4 | 4 |
| 1580 | 450 | 3 | 2 | |
| Для сельскохозяйственных предприятий | ||||
| СВО9-12 | 630 | 475 | 3 | 2 |
| СВО9-18 | 630 | 500 | 3 | 3 |
| СВО12-12 | 930 | 475 | 3 | 2 |
| СВО12-18 | 930 | 500 | 3 | 3 |
| СВД9-12 | 680 | 500 | 3 | 4 |
| СВД9-18 | 680 | 525 | 3 | 6 |
| СВД12-12 | 980 | 500 | 3 | 4 |
| СВД12-18 | 980 | 525 | 3 | 6 |
ПРИЛОЖЕНИЕ 6
Справочное
СПЕЦИФИКАЦИЯ СТЕКОЛ ДЛЯ ОКОН СЕРИЙ Н И Г
|
Марка окна |
Размер, мм
|
Количество |
||
| Высота | Ширина | Толщина | ||
| Для зданий промышленных предприятий | ||||
| ПНО12-18.1 | 980 | 1025 | 4 | 1 |
| 980 | 425 | 3 | 1 | |
| ПНО12-24.1 | 980 | 1025 | 4 | 2 |
| ПНО12-30.1 | 980 | 1025 | 4 | 2 |
| 980 | 425 | 3 | 1 | |
| ПНО12-30.2 | 980 | 1025 | 4 | 2 |
| 980 | 425 | 3 | 1 | |
| ПНО18-18.1 | 1580 | 1025 | 4 | 1 |
| 1580 | 425 | 3 | 1 | |
| ПНО18-24.1 | 1580 | 1025 | 4 | 2 |
| ПНО18-30.1 | 1580 | 1025 | 4 | 2 |
| 1580 | 425 | 3 | 1 | |
| ПНО18-30.2 | 1580 | 1025 | 4 | 2 |
| 1580 | 425 | 3 | 1 | |
| ПНД12-18.1 | 980 | 1025 | 4 | 2 |
| 980 | 425 | 3 | 2 | |
| ПНД12-24.1 | 980 | 1025 | 4 | 4 |
| ПНД12-30.1 | 980 | 1025 | 4 | 4 |
| 980 | 425 | 3 | 2 | |
| ПНД12-30.2 | 980 | 1025 | 4 | 4 |
| 980 | 425 | 3 | 2 | |
| ПНД18-18.1 | 1580 | 1025 | 4 | 2 |
| 1580 | 425 | 3 | 2 | |
| Для зданий сельскохозяйственных предприятий | ||||
| ПНД18-24.1 | 1580 | 1025 | 4 | 4 |
| ПНД18-30.1 | 1580 | 1025 | 4 | 4 |
| 1580 | 425 | 3 | 2 | |
| ПНД18-30.2 | 1580 | 1025 | 4 | 4 |
| 1580 | 425 | 3 | 2 | |
| ПГО12-18.1 | 1580 | 1140 | 4 | 1 |
| 1095 | 540 | 4 | 1 | |
| ПГО12-24.1 | 1095 | 1140 | 4 | 2 |
| ПГО12-30.1 | 1095 | 1140 | 4 | 2 |
| 1095 | 540 | 4 | 1 | |
| ПГО12-30.2 | 1095 | 1140 | 4 | 2 |
| 1095 | 540 | 4 | 1 | |
| ПГО18-18.1 | 1095 | 1140 | 4 | 1 |
| 1695 | 540 | 4 | 1 | |
| ПГО18-24.1 | 1695 | 1140 | 4 | 2 |
| ПГО18-30.1 | 1695 | 1140 | 4 | 2 |
| 1695 | 540 | 4 | 1 | |
| ПГО18-30.2 | 1695 | 1140 | 4 | 2 |
| 1695 | 540 | 4 | 1 | |
| СГО6-9 | 1695 | 795 | 3 | 1 |
| СГО6-12 | 495 | 1070 | 3 | 1 |




















