ДИЗЕЛЬНАЯ ЭЛЕКТРОСТАНЦИЯ (ДЭС), ВЫПОЛНЕННАЯ НА БАЗЕ ЭЛЕКТРОАГРЕГАТА АД16-Т400-1 ВП
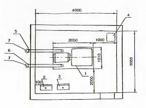
УСТАНОВКА ОБОРУДОВАНИЯ. ПЛАН НА ОТМ. 0.000
1 —дизельный злектроагрегат; 2 — шкаф с вытяжкой для обслуживания аккумуляторных батарей; 3 — шкаф управления приточно-вытяжной вентиляцией; 4— бак топлива; 5 — газовыхлопной трубопровод; 6 — воздухозаборный трубопровод; 7 — глушители
Дизельный электроагрегат размещается в здании I и II степеней огнестойкости. В отношении пожароопасности помещение электроагрегата относится к категории «Г».
Помещение оборудуется принудительной вентиляцией, обеспечивающей удаление окиси углерода и охлаждение электроагрегата е летний период, пожарной сигнализацией, системой отопления, поддерживающей температуру воздуха в помещении не ниже +6 °С, общим рабочим и аварийным освещением.
В помещении электроагрегата устанавливаются шкаф, оборудованный вытяжной с зарядным устройством, шкаф управления системой вентиляции, бак с запасом топлива Для электроагрегата предусматриваются забор воздуха для образования горючей смеси двигателя и отвод отработанных газов за пределы здания.
Аккумуляторная батарея закрытого типа (стартерная), аппаратура управления и защиты размещаются на одной раме с электроагрегатом.

