ДВУХТРУБНАЯ СИСТЕМА ОТОПЛЕНИЯ С ЕСТЕСТВЕННЫМ ПОБУЖДЕНИЕМ
ПЛАН 1 го ЭТАЖА НА ОТМ. 0.000, 1.360

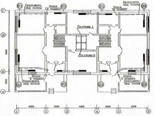
ПЛАН ПОДВАЛА НА ОТМ. -2.420, -1.260

Примечания
1. Двухтрубная система отопления с естественной циркуляцией теплоносителя применяется только тогда, когда есть возможность заглубить котел не менее чем на 1,5 — 2 м относительно нижнего отопительного прибора (на одном уровне работают приборы только верхних этажей).
2. Двухтрубная система отопления с насосной циркуляцией теплоносителя не имеет таких ограничений
3. Наибольшее удаление плеча в схеме системы отопления не должно превышать 30 м.
4. Регулирующую арматуру можно установить на каждой подводке нагревательного прибора.
СХЕМА СИСТЕМЫ ОТОПЛЕНИЯ ЛЕВАЯ (двухтрубная, насосная)
СХЕМА СИСТЕМЫ ОТОПЛЕНИЯ ПРАВАЯ (двухтрубная, насосная)

ПРИНЦИПИАЛЬНАЯ СХЕМА ОБВЯЗКИ ДВУХФУНКЦИОНАЛЬНОГО КОТЛА С НАСОСНОЙ ЦИРКУЛЯЦИЕЙ ТЕПЛОНОСИТЕЛЯ

1. Тип системы — двухтрубная с верхней разводкой.
2. Циркуляция — насосная.
3. Котел на отопление и ГВС двухфункциональный на жидком топливе — АОЖВ-29 (кВт)
4. Тепловая нагрузка по укрупненным показателям: на систему отопления при Q = 0,7… 1 Вт/м³трад; F = 260 м² — отапливаемая площадь;
V = 800 м³ — отапливаемый объём,
= 07×800х(20 + 26) =25760 Вт.
5. Нагрузка на ГВС не превышает 20 % нагрузки на систему отопления.
6. Теплопроизводительность котла
Q = 1.1 x Qот =25760 х 1.1 = 28340 Вт 7. Тип отопительных приборов — чугунные радиаторы МС-140-АО.
8. Арматура — вентили повышенного сопротивления.
9. Параметр;.- теплоносителя Т11 — Т21 = 90…70 °С

